Words MLA at Home (&Matcha)
Editing The Kanto team
Images Janius Lee


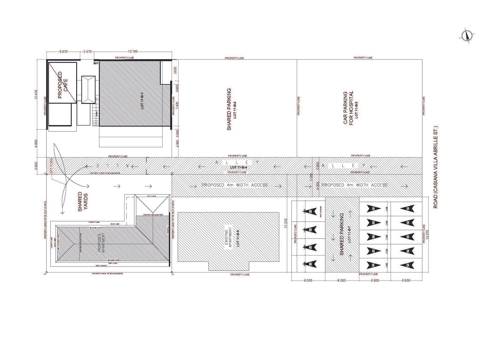
&Matcha Satoyama, designed by MLA at Home, is a tea house situated at both a physical and psychological edge: architecture expressed as an act of offering than assertion. It occupies a 100-square-meter sliver at the furthest corner of a compound in Davao City, an abandoned parking lot that has become a catch basin for floodwater, waste, and unmanaged vegetation.
Instead of sanitizing this neglected terrain, our design reinterprets the untamed remoteness as latent value. The distance required to reach the tea house from the bustling road acts as a sensory filter, slowing the pace of arrival and preparing the visitor’s perception for a space defined by ‘civic generosity,’ extending hospitality both to human occupants and the ecological systems already in place.


We began the design process with sustained observation of the site. Treating the parcel as an existing ecology, we identified the resident flora, a mango tree, starfruit, and resilient bamboo, as our primary clients. Soil conditions were restored, and water movement stabilized, allowing the landscape to recover, at which point we made our spatial introduction.
Our built space serves as scaffold for this foundling ecosystem; notably, the mango tree that had long been dormant returned to seasonal production as the tearooms took shape. This ‘ethic of accompaniment’ uncovers architecture at its most transformative, choosing to support and enrich life already underway.
&Matcha’s design narrative unravels in four acts.





I. Connective Void
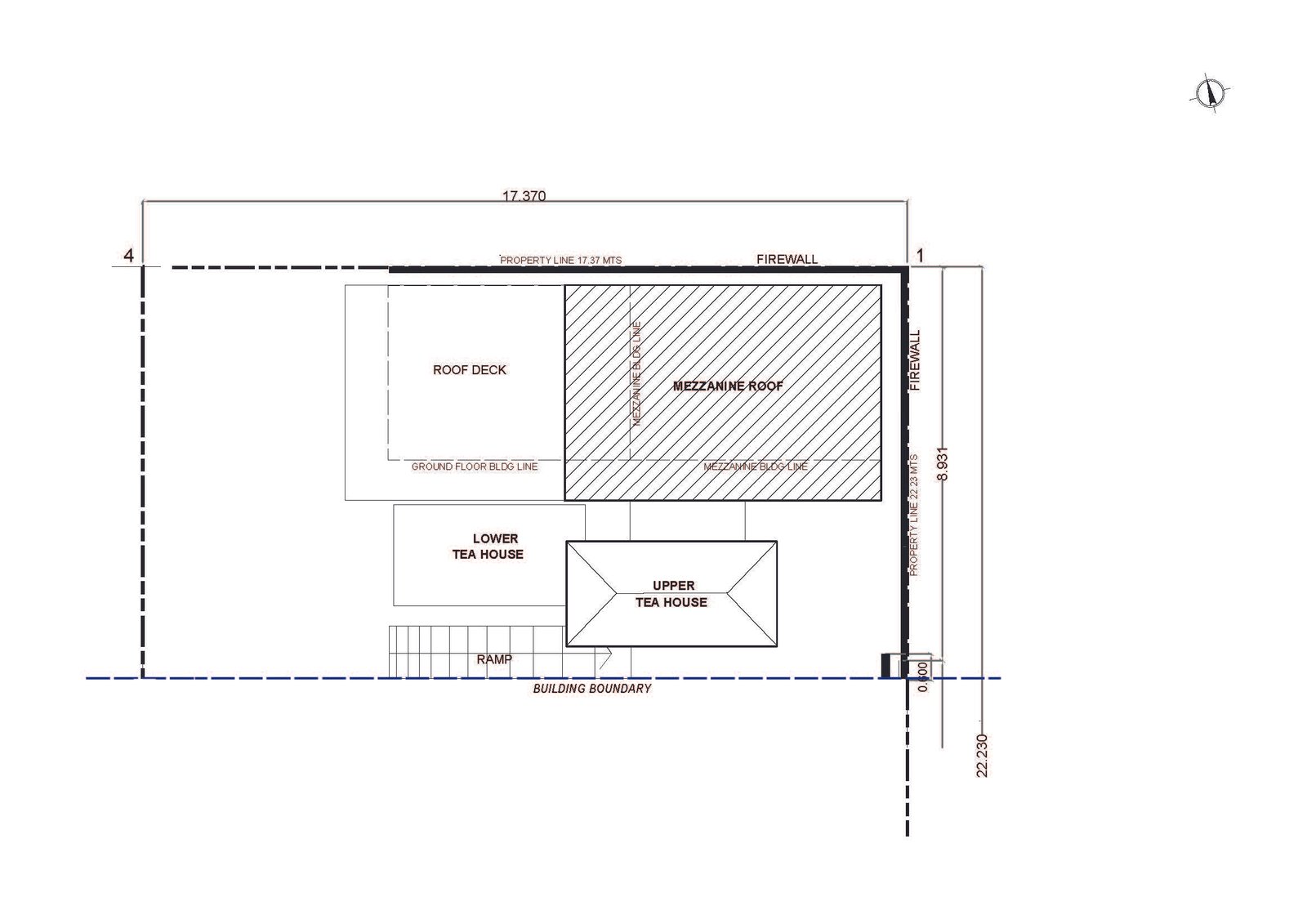
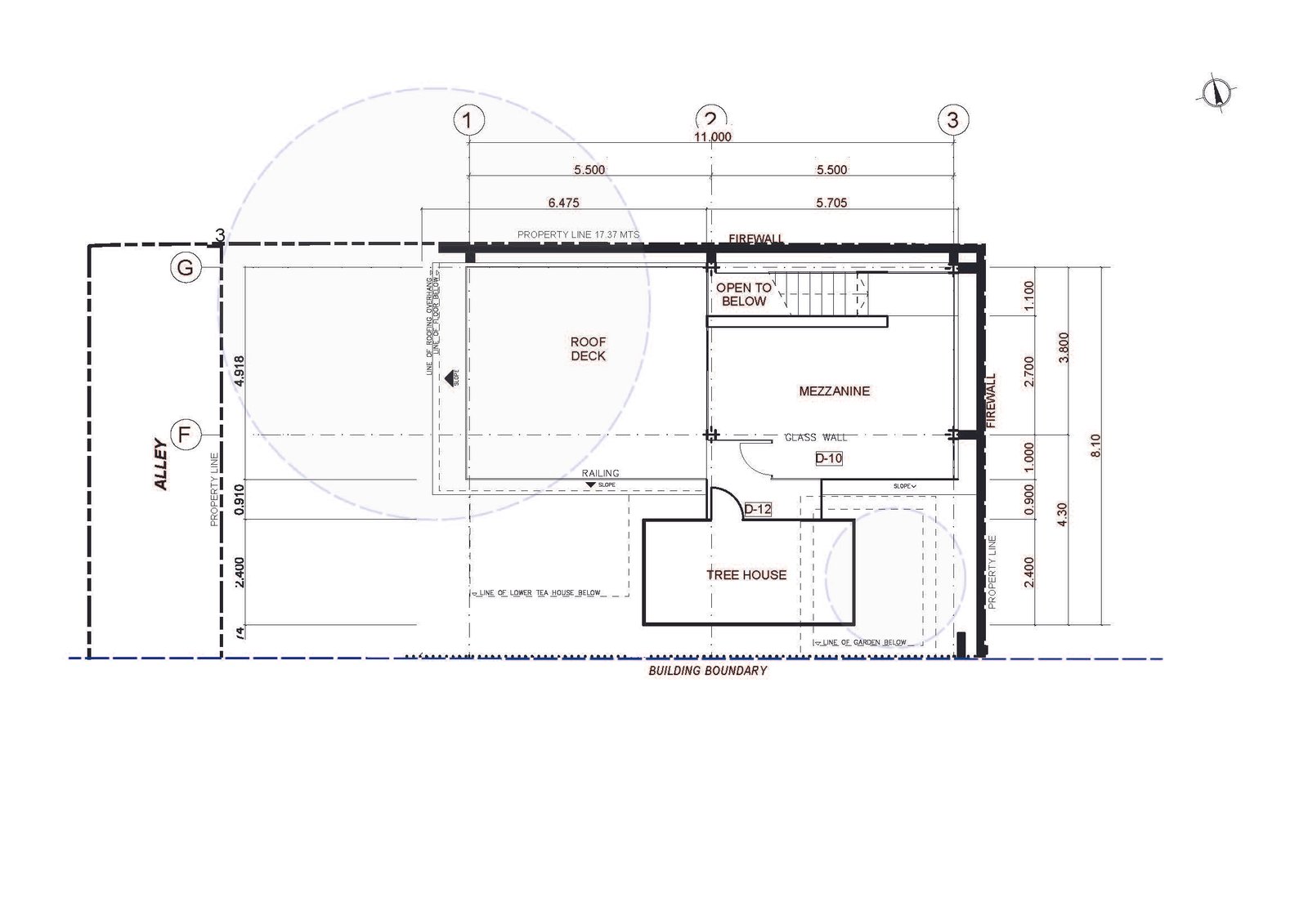
Construction commenced with addition, but also subtraction. Our spatial strategy for &Matcha is defined by The Gap, a continuous perimeter void that allows rain to fall directly through the building. By treating weather as a participant in placement rather than as a variable to be kept out, the structure transforms from a watcher into a recorder of the passage of time.
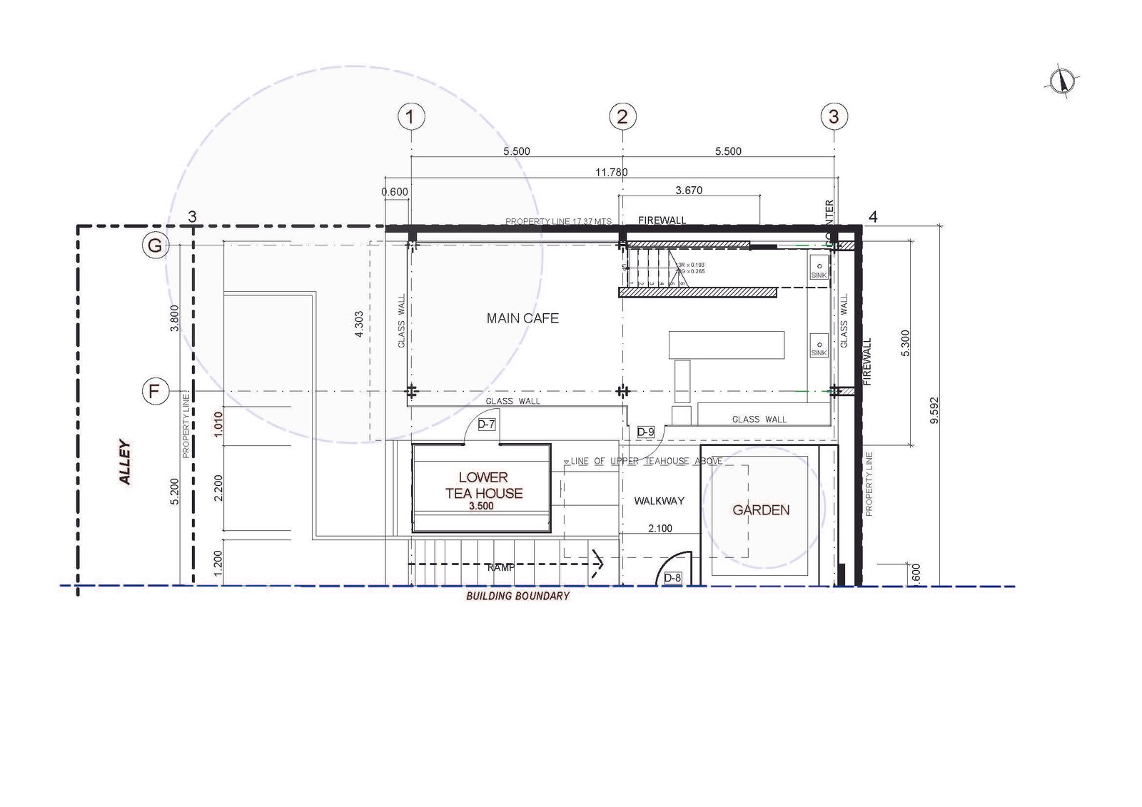
At the heart of this void is a modest tea chamber raised to canopy level, the project’s central axis. Secondary rooms orbit this elevated sanctum, framing shifting perspectives of the landscape. Hand-cut, horizontal steel panels transform sunlight into trembling shadows, creating the illusion of vertical sheets of suspended water. The built forms find their definition in the volume of air, light, and growth they return to the site.
II. Materiality of Motion
The elevated main tearoom’s structural slab is a meditation on the states of matter. Both green tea and concrete begin as liquids; the design acknowledges this transformation by using commonplace materials, alongside a waterproofing membrane, and stone aggregates to create a membrane formwork.
When cured, the underside of the slab reveals a surface that resembles motion suspended in time, a frozen horizon. Utilizing accessible construction techniques, the slab elevates the necessity of infrastructure into a moment of quiet wonder, creating transcendence by drawing out the poetic potential of construction.


III. Softening the Tectonic
We sought to dissolve the perception of weight at the upper level. Standard steel columns are split and manually cut with generous, intentional tolerances, the slight irregularities embraced as a construction language.
As sunlight moves across these faceted, split surfaces, the rigid steel members dissolve into a vertical shimmer. The structural mass is dispersed into shifting planes that mimic overlapping currents of water. Strength is expressed as atmosphere, reconciling mechanical necessity with sensory softness via shared light.




IV. Calibrated Contrasts
Arrival is mediated by a partially concealed entrance tearoom, encircled by a planted moat. Though it is the first point of contact, it is designed to feel psychologically remote. A slanted roof directs the eye upward, revealing the floating chamber above and establishing a vertical layering of space.
The floor, constructed of glass blocks with a water-like surface, allows shadows from the surrounding greenery to ripple across the floor at dusk. This room operates through a gentle dislocation; it is accessible yet hidden, intimate yet connected. The space recalibrates the visitor’s perception without severing continuity with the whole.



&Matcha Satoyama is our case study of forgiven tolerances. It is a project that actively resists refinement, wholeheartedly embracing grit and grain, from the staggered edges of our wood ceilings to the irregular profiles of the tearoom’s concrete eaves. We believe these design decisions allow the construction to reveal human presence but also set the stage for nature and time to leave their marks.
By giving the sky back to the canopy, allowing materials to reveal their making, and furnishing the community with a new space to connect, we find that civic contribution can be derived from measuring the precision with which a building allows life to occur more fully. Generosity, in this context, becomes an act of discipline: the transformation of a forgotten corner into shared ground through the careful shaping of conditions, in which trees, rain, and people alike can inhabit and recover. •






























