Words Informed Works
Images Martinez Photography
Editing The Kanto team
Yard (Front) is a small office building located at Sitio 6, Diversion Road, Balagtas, Batangas City. The site is the client’s collection and service yard for an array of heavy equipment. The project called for a strategic and mindful architectural intervention to highlight and display products while improving the overall customer and employee experience of viewing, purchasing, testing, organizing, and servicing the machinery.
We found the site in a condition that needed ground-up planning. The project, therefore, contemplated an intervention that organizes, highlights, and adds to what already exists. The design studies the site closely, focusing on developing volume along the front edge of the property as a way of inserting a meaningful, inhabitable space into an otherwise utilitarian edge condition.


With a wide collection of heavy equipment and parts, the depth and arrangement of the Yard’s elements are qualities to be taken advantage of and placed fully on display. The approximately 30-meter frontage was manipulated like a glorified storefront, designed to visually open up and reveal what lies within. Superficial and flat layers were carefully arranged to create something unique to draw attention to the site. A sense of lightness and softness is introduced to balance the industrial, heavy, and rough characters of the context. Translucent and transparent materials come into play to control perspective and vision into the lots and the collection. This framing extends deeper into the site, where a manipulated and manicured flat plaza enhances the view into the collection and service yard.
The mesh cladding introduces a porous layer to the built environment, reinforcing the idea that the office building is secondary to the yard it serves. The panels function as rails for viewing platforms that extend outward, allowing customers to engage with the yard from elevated positions. Where these panels terminate, glimpses of the underlying structural framework are revealed, adding depth to the architectural language. These interventions break down the scale of the site, framing smaller vignettes and improving the legibility of the open yard.
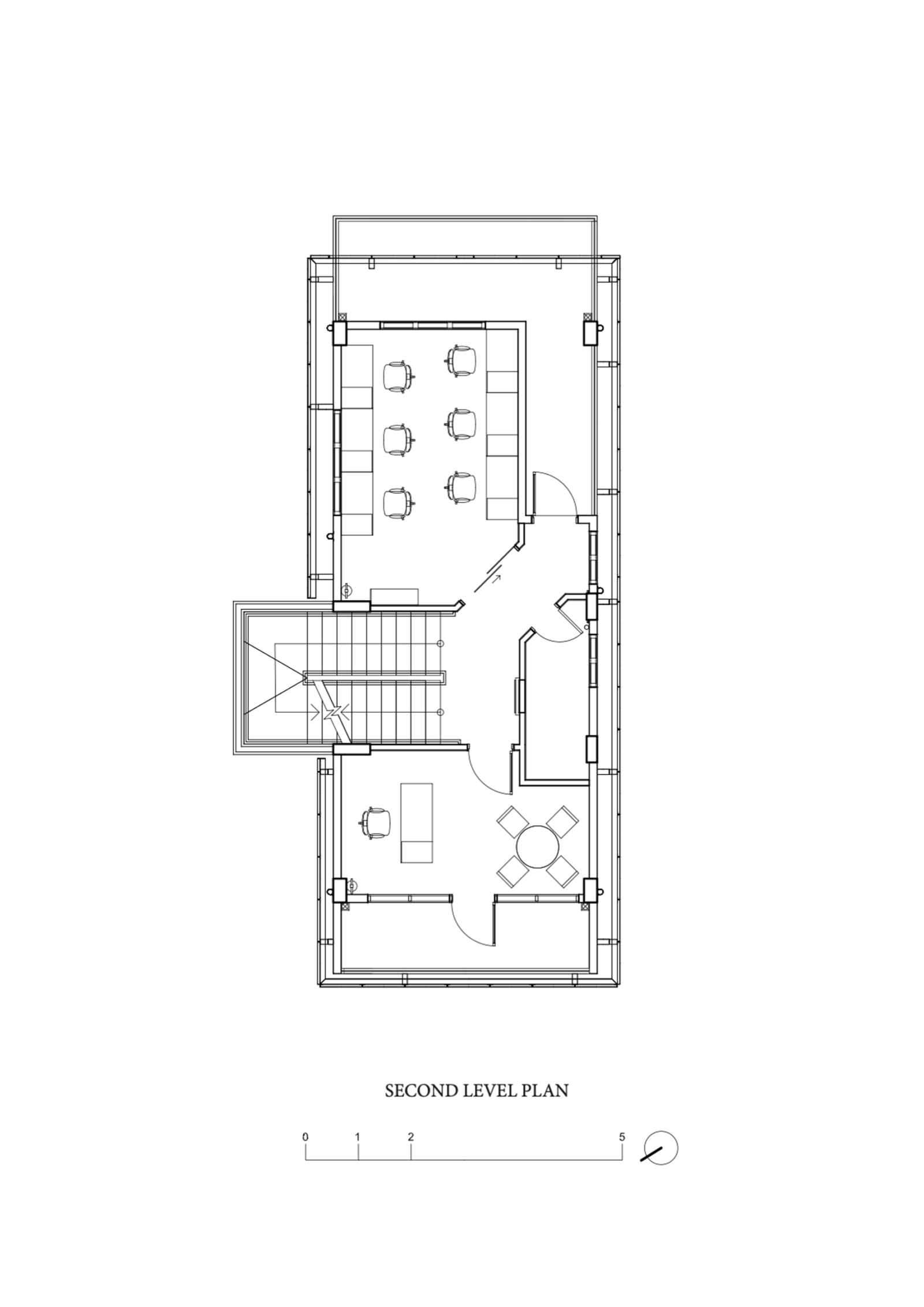
A vertical structure organizes the building’s program and creates vantage points across the site. Office spaces for approximately 15 people are stacked into a thin, sleek massing along the frontage. This verticality serves multiple purposes: it attracts attention from the streetscape, provides elevated viewpoints into the yard, and introduces volume to an otherwise flat and horizontal frontage.
The staircase connecting the levels becomes a prominent architectural element. Treated differently from the mesh-clad volumes, it is wrapped in a twin-wall polycarbonate skin that appears to float off the ground, contributing to the lightness of the overall composition. This volume also visually ties into the long gates or frames that function as shop windows into the yard.
The architecture is designed to be flexible and responsive to the changing nature of the collection. As the client curates and repositions heavy equipment throughout the yard, new perspectives emerge, giving the project an evolving character. The built volumes and materials act as secondary elements, almost like white canvases, augmenting the visual presence of the equipment itself.
At the rear of the office building, a viewing platform provides a comprehensive vantage point of the yard. Given the site’s depth, it is difficult to fully display the entire collection from the front. While the frontage showcases key pieces, this elevated platform allows potential customers to understand the full inventory, including views into the service center located at the back.


Between the solid office volumes and outer layers are in-between spaces defined by steel I-beam extensions. From the exterior, mesh panels provide dimensionality. From within, they create sheltered areas with varying degrees of light and ventilation for employees. These layers establish a gradient of exposure, mediating between inside and outside.
All materials used in the project are non-precious, readily available, and industrial-grade. Through careful curation and composition, these rough and familiar elements are transformed into something refined. The use of industrial materials such as mesh and polycarbonate also reflects the character of the site, emphasizing both durability and lightness. Much like the service yard itself, where the inventory may be crude, the architecture seeks to capture a sense of beauty and delicateness.


Along the road, the yard sits against an abrupt curb, with future government road expansion in consideration. In response, the project pulls back the gate and frontage, creating an open forecourt that functions as a plaza. The purposeful “emptying” created a space that places the Yard front and center, providing a moment of pause while showcasing what the structure can offer. •
Project Information
Plaza size : 230 sqm
Building size: 480 sqm
Completion year: 2025
Client: Civic Merchandising, Inc.
Project Team
Principles in charge: Rodney Aaron Zheng, Kerwin Charles Ngo, Allie Yeseul Chung
Record architect: Informed Works Architecture and Research (Rodney Aaron Zheng)
Contractor: Alpa Exponential Builders Inc.
Structural consultant: Engr. Grace Villaflor
MEP consultant: Engr. Clemente G. Pangilinan


















