Words Linehouse, with the Kanto team
Images Bricksbegin for Linehouse



What does a Malaysian leather brand of fifty-plus years do to weather its next fifty?
For its newest concept store, the Malaysian marque Bonia approached Linehouse to realize a space that would help it attain its two-pronged goal: elevating its “accessible luxury” credentials and cementing its name further within the leatherware landscape of Southeast Asia.
The brand was born from the vision of Chiang Sang Sem, a Malaysian entrepreneur whose 1974 visit to a leather trade fair in Bologna introduced him to the work of 16th-century Italian Renaissance sculptor Giambologna. The whole visit left such an impression on the future leatherware patriarch that he built the Bonia brand as a portmanteau of the city and the sculptor. Though Malaysia is not traditionally seen as a leather goods powerhouse, Bonia swiftly established a presence and garnered a loyal following across Singapore, Indonesia, and the Middle East.




Fast forward to today: as an international brand that has evolved into a veritable melting pot of global influences, Bonia has launched a new concept that straddles the monumentality of its achievements and the beauty of the journey, with a store design that encourages exploration and discovery.
Located within the high-density luxury retail environment of Pavilion Kuala Lumpur, the 206-sqm store is the China-New Zealand-based studio’s first assignment in Malaysia. To stand out amongst the glass-and-gloss fatigue of the mall, the Linehouse design team began by looking to the city’s archetypal street arcades.
The House of Bonia façade uses red brick tiles and a rhythmic sequence of pillars to establish a sense of permanence and “matte” grit. These pillars act as a sequential frame, offering passersby cinematic, fragmented glimpses into the interior. At the low level, the masonry is anchored by an inverted curved brick cornerstone, while canted solid canopies extend outward to reinforce the threshold.


“To stand out amongst the glass-and-gloss fatigue of the mall, the Linehouse design team began by looking at the archetypal street arcades of the city.”




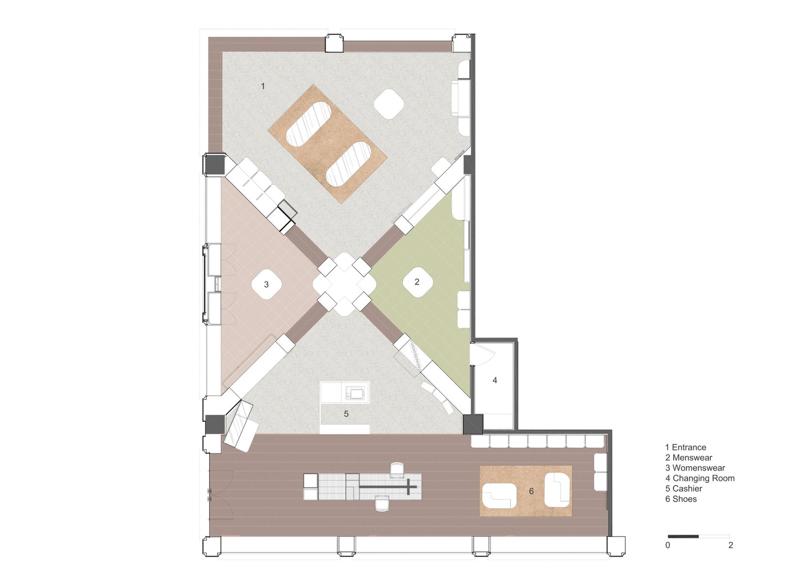
Once past the threshold, the floor plan rejects the typical retail “box.” The interior reveals four rooms in a rhythmic sequence, rotated around a central display node along two intersecting diagonals. This rotation allows the space to unfold as a modern enfilade, where views are constantly reframed.
The spatial narrative within is one of quiet domesticity, almost as if one has arrived at someone’s home. Subtle design cues guide visitors through rooms with distinct personas: from a quiet library to an intimate dressing room to a communal lounge. Strong red and orange frames, along with strips of terracotta flooring, define the axial room thresholds. Green and pink shades line the two middle rooms, while the library is finished in a sumptuous blend of burgundy and terracotta. While visually separate, a porous ‘spine’ that also acts as a display shelf allows the shopper a glimpse into the neighboring rooms.


The display fixtures are active participants in the architectural experience. Embedded within the walls are pivoted cases, screens, and cabinets that fold outward, suspended by Bonia leather belts, a tectonic nod to the brand’s core material. Combined with modular shelving and flexible fixture tracks, this kinetic approach allows the store the versatility to be reconfigured and restyled throughout seasons.
The House of Bonia ultimately functions as a choreographed sequence of discovery, reminiscent of its founder’s epiphany fifty years back. From the deep red-brick arcade at the threshold to the kinetic leather-belt fixtures inside, the store relies on the physical friction of its materials rather than visual sheen to hold the eye. It is a space that rewards the slow wanderer, a home to celebrate the things that only grow more beautiful with age. •






